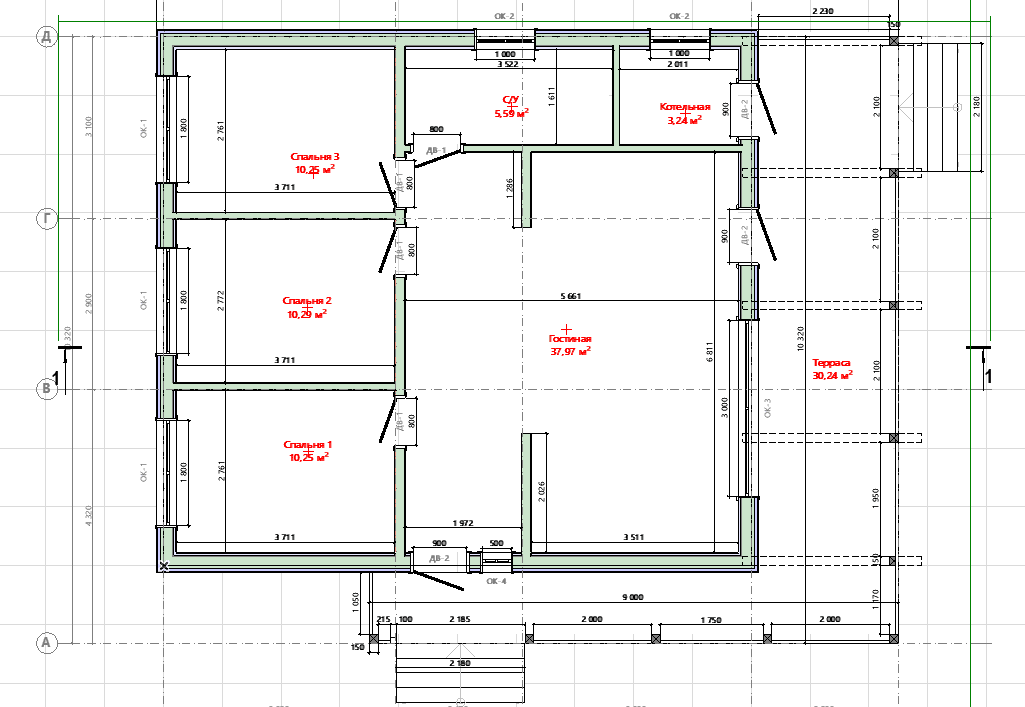
Каркасный дом Премьер 12.5Х9.0

15000 ₽
Артикул:
004
-+
Каркасный дом Премьер 12.5Х9.0